Deadbolts

Security is the No. 1 priority of any home or business owner, and adding a deadbolt to an exterior door provides an unparalleled level of protection. Deadbolt locks deliver top-notch security and durable protection against lock bumping, picking, and kick-ins—all things that strike fear into the hearts of those with homes and businesses.  The most popular choices for residential applications are single cylinder and double cylinder deadbolts. One-sided deadbolts are ideal for bathrooms located inside businesses, hotel rooms and other public arenas.

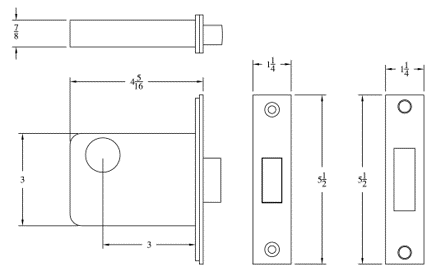
All deadbolts can be configured individually. Please Select a style below, then choose your finish, function, cylinder, latch type and strike plate on the product's detail page.

10 Items

Loading...